Architectural drawings can make or break a custom home or remodeling project. High-quality permit- and construction-ready documentation helps prevent project delays, avoid confusion during construction, and save costs.
At KGA, we create quality construction documents that focus on our client’s vision and accommodate builder and jurisdictional requirements to improve the construction process. Our approach is organized and multidisciplinary with built-in quality controls, resulting in clear and buildable designs that keep projects on track and within established budgets.
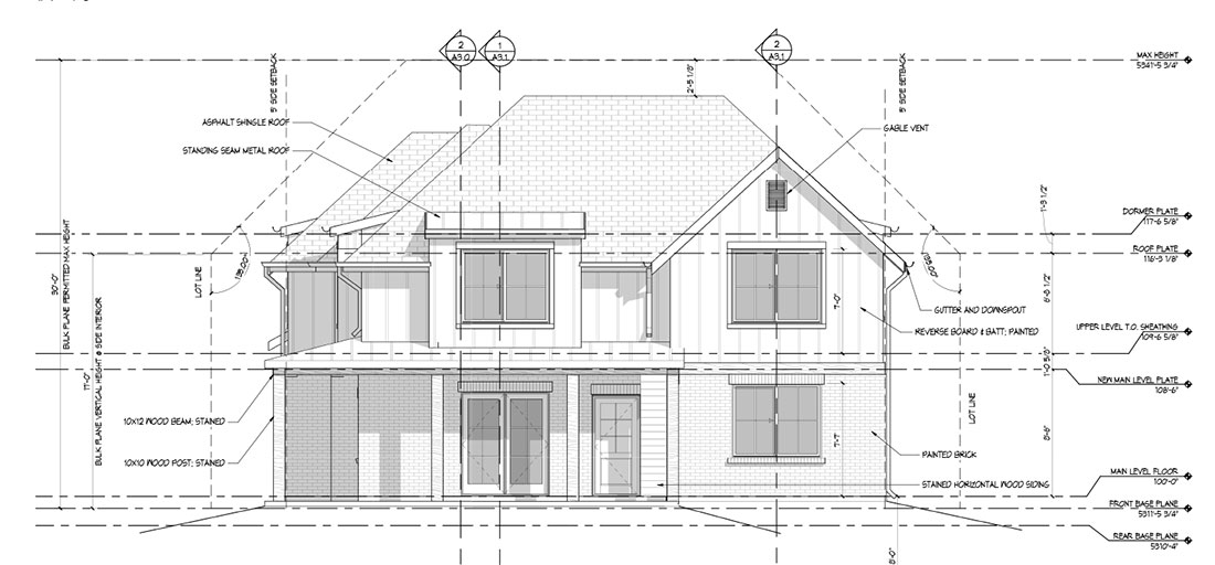
The difference between chaos and clarity on site starts with great drawings. Here’s why quality architectural drawings are the foundation of a successful build:
Table of Contents
- Quality Control & Coordination
- Clarity & Constructability
- Municipal Expertise
- Design Alignment & Buildability
- Cost & Time Efficiency
- Great Homes Start with Great Drawings
Quality Control & Coordination
Architectural drawing accuracy, code compliance, and attention to detail are essential, but you’d be surprised how many sets get to permit approval with unnecessary errors and issues. Designs that don’t fit within setbacks, comply with building height restrictions, or provide insufficient mechanical details are more common than you might think, and lead to project delays and additional design costs.
KGA’s quality control process is rigorous and fully coordinated across internal disciplines with multiple reviews. Our team also manages consultants proactively, meticulously coordinating every drawing set with structural, mechanical, electrical, and other consultants for accuracy, to eliminate conflicts, and ensure seamless integration.
The result: Architectural drawing sets that are complete, correct, and ready for permitting and construction every time.
Clarity & Constructability
Your project deserves organized and clear drawings that a builder can easily interpret and build from during the construction process. KGA prefers a design-build approach to every custom home and remodel — we work closely with the highest-quality construction teams and know exactly what they need to get the job done well and efficiently. We also regularly check in with builders for feedback on our drawings to continuously improve our processes and documentation.
KGA’s drawings are created with the builder in mind, with the right amount of detail general contractors and subcontractors require to avoid confusion, misinterpretation, and delays. “My team really appreciates that KGA gives extremely buildable plans that focus on the right details,” says Cole Ambler of TMD Custom Builders.
From logical sequencing to material specifications, our drawings reflect real-world building methods formatted for readability without confusion or guesswork. “Overly detailed drawings or drawings with no detail at all will drag out the process and can even make the home unbuildable,” says Ambler.
The result: Clear, buildable drawing sets that reduce Requests for Information (RFIs) and costly change orders while improving build efficiency and maintaining project timelines.


Municipal Expertise
The permit process in many jurisdictions is long enough already. The last thing you need is the project getting delayed to correct things that should have been documented properly in the first place.
KGA submits permit-ready documentation, a direct result of our strong relationships with municipalities and deep understanding of local codes. Knowing the type of information and detail each municipality requires, along with how best to present and communicate both, benefits homeowners through faster permit approvals, fewer revisions, and fewer costs. Permit review timelines and requirements are always changing — we stay informed about necessary changes and learn from previous submittals to refine our process.
The result: Our experience with jurisdictional requirements allows us to minimize delays and optimize the permitting timeline.
Design Alignment & Buildability
How a home lives is equally as important as how it looks. That’s why it’s so important to take time during programming and schematic design to make sure your architect fully understands your vision for your home, both inside and out.
KGA’s design process is thoughtful and program-driven, ensuring every drawing reflects the client’s goals and spatial program. “KGA honors a home’s architectural style and takes the time to ensure the designs are in line with that architectural intent,” says Ambler.
Our team designs using logical layouts and pragmatic space planning. We specify materials and dimensions that align with industry standards and supplier availability, reducing waste and cost while maintaining project timelines.
The result: The design is not only beautiful but functional and buildable, and fully aligns with the client’s vision.


Cost & Time Efficiency
Delays are often an unfortunate part of building a custom home or remodel. Delays happen for a variety of reasons, some beyond your team’s control, but others can be avoided by working with experienced architects who produce high-quality drawings.
KGA construction drawings include the right amount of detail builders need to prevent costly errors and reworking plans on the job site.
Our team takes ownership of the project through effective time management from the design stage through the permitting stage. Our streamlined process, coupled with our relationships with municipalities and consultants, reduces jurisdictional review time during permit approval (timelines vary by jurisdiction).
The result: Your new home or remodel project timeline stays on schedule and avoids expensive corrections or change orders in the field.
Great Homes Start with Great Drawings
Your dream home starts with your vision, and your architect should have the expertise to both bring that vision to life and create the highest-quality architectural drawings that are permit and construction ready. KGA’s drawings and documentation accurately include everything your municipality and builder need for permit approval and construction, minimizing delays, design changes, and costly on-site change orders.
Learn more about KGA’s architectural design process on our blog, How Does the Architectural Design Process Work?
And if you have questions about your project, contact us for a complimentary consultation:
Ready to Get Started?
Let’s talk! Tell us more about your project. We respond within 2 business days.



